Terreno en Venta en Maipu, Mendoza.

Maipu Mendoza

, Maipú Centro

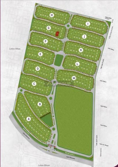
DESTACADO LOTE - ADOLFO VILLANUEVA S/N, B° LOMAS DEL TORREÓN

371m2

Descripción

Gold Group Argentina Vende!
Destacado lote en el B° Lomas del Torreón.
Sobre la arteria Adolfo Villanueva, Luzuriaga ( Maipú ).
( más abajo va info completa del predio ).
El terreno posee 370,86 m2 de superficie total.
14 mts forntales por algo más de 26 mts de fondo.
Se halla en un sector de privilegio del predio.
Excelente orientación.
Listo para escriturar.
Todos los servicios en puerta.
Precio del lote: U$D 39.000.-
Muy buen valor de mercado.
Expensas apróx: $ 150.000.-
Acerca del Lugar / Barrio "Lomas del Torreón".
Un extenso espacio rodeado de aire puro y vistas privilegiadas.
El desarrollo del mismo tiene características especiales ya que rompe con el diseño tradicional haciendo que cada lote sea único en forma y dimensiones, en un concepto urbanístico claramente innovador.
Sito a pasos del clásico Olivos del Torreón, uno de los barrios fundacionales de esta notable región.
Con salidas prácticas y dinámicas hacia las principales arterias de la comuna.
En la actualidad hay varias obras de viviendas unifamiliares en marcha.
El barrio tiene previsto: seguridad privada, rondines constantes, jerárquico pórtico de ingreso ( ya construido ), cámaras de vigilancia y control, plaza de juegos ( ya está lista ) y demás bondades de pleno confort para poder vivir con total tranquilidad.
Un eslabón más del emblemático Pueblo Torreón.
A sólo 15' del Centro de Mendoza y a 5' del de Maipú.
Con salidas rápidas y sencillas hacia el Acceso Sur ( Ruta Nacional N° 40 ), Terrada y la Av. Emilio Civit ( continuación de Juan José Paso, de la pujante comuna.
Parada del Metrotranvía de la zona a menos de 500 mts, la inminente apertura del Supermercado Vea,
el centro comercial Estación Torreón, el club Regatas ( sede Maipú ) y atractivos predios de la región, así como de complejos deportivos, clubes, farmacias ( Del Puente, por ejemplo ) y restaurantes; posibilitando disfrutar todo tipo de actividades recreativas.
En resumen: todo lo ideal para proyectar la anhelada vida de ensueño.
A disposición para visitas y/o cualquier otro requerimiento.
Matrícula: SA_004
NOTA: quienes pretendan contratar los servicios estarán sujetos a las consideraciones detalladas a continuación:
Se le informa que tanto los precios, como las distancias, características, medidas y/o condiciones publicadas son aproximaciones, no precisas y sujetas a modificaciones, las cuales se efectuarán sin previo aviso.
Asimismo, todos los datos proporcionados en esta publicación pueden contener errores, los cuales no deben considerarse contractuales ni vinculantes.
Tenga en cuenta que algunas características y terminaciones pueden variar o no encontrarse incluidas en el precio indicado. Recomendamos siempre consultar con nuestros profesionales para confirmar la verosimilitud y actualización de la información proporcionada.


Datos de la propiedad

  • ID#
    17636-11194
  • Tipo de construcción
    Terreno
  • Condición
    Venta
  • Superficie Total m2
    371
  • Zona Escolar
  • Luz Eléctrica
  • Agua
  • Gas
  • Cloacas
  • Barrio Privado
  • Tiene Expensas
  • Valor de Expensas
    150000

Ubicación

Destacado Lote - Adolfo Villanueva S/N, B° Lomas del Torreón

Avisos similares