Lote en Venta en Lujan de Cuyo, Mendoza.

Lujan de Cuyo Mendoza

JOSÉ M. ZAPIOLA 341

300m2

Descripción

FeedINMO Ofrece a la venta LOTE EN BARRIO PRIVADO LAR DE DRUMMOND – LUJÁN DE CUYO

Excelente lote central ubicado a solo 15 metros de la portería, en uno de los barrios privados con mejor acceso de Luján: a tan solo 100 metros del Acceso Sur.

El lote cuenta con: 300m2 (12 m de frente y 25m de fondo)

Orientación Norte-Sur
Todos los servicios (Luz, Agua, Gas, Cloacas)

Calles Asfaltadas
Entorno seguro y consolidado
Microclima privilegiado de la zona

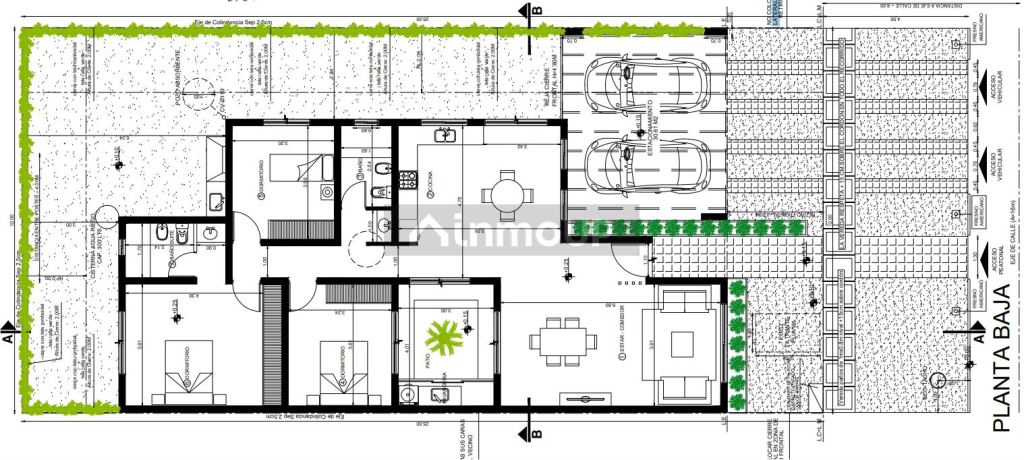
El lote se vende con proyecto de arquitectura aprobado y listo para construir.

Características: Superficie cubierta 131 m2, amplio estar comedor, cocina integrada, lavandería independiente, patio interno que aporta luz y ventilación natural, 3 dormitorios con placares (uno con baño en suite), otro baño completo, patio trasero y cochera doble.
Toda la casa está desarrollada en Planta Baja, con diseño moderno.

Este lote es ideal tanto para quienes buscan construir su hogar en un entorno seguro y bien conectado, como para quienes desean invertir en un proyecto inmobiliario de alta rentabilidad.

¡No dejes pasar esta oportunidad! Contáctanos hoy mismo y coordinemos una visita.

Matrícula CCPIM 2066
---

Nota: El precio publicado, las medidas y distancias indicadas son de referencia y pueden estar sujetas a modificaciones sin previo aviso. Los datos consignados en esta publicación pueden contener errores y no son contractuales. Verifíquelos previamente con nuestro corredor inmobiliario.


Datos de la propiedad

  • ID#
    286846-31
  • Tipo de construcción
    Lote
  • Condición
    Venta
  • Superficie Total m2
    300
  • Zona Escolar
  • Luz Eléctrica
  • Agua
  • Gas
  • Cloacas
  • Barrio Privado
  • Tiene Expensas
  • Valor de Expensas
    90000
  • Precio Dolares por m2
    133

Ubicación

José M. Zapiola 341

Avisos similares