Casa en Venta en Maipu, Mendoza.

Maipu Mendoza

BARRIO PRIVADO VISTA MICHELO, Maipú

BARRIO PRIVADO VISTA MICHELO

2
2
85m2
150m2

Descripción

Territorio Mendoza VENDE

Casa ubicada en Bª Vista Michelo, calle 25 de Mayo Oeste a metros de Maza, Maipú. Excelente zona en pleno auge, cercanías a Accesos, Parque
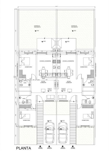
Desarrolladas en planta baja, cuentan con:
- 2 Habitaciones con placares.
- 2 Baños completos (1 en suite).
- Living semi integrado.
- Cocina comedor.
- Amplio patio con churrasquera.
- Cochera.
- Ingreso peatonal.
Venta en pozo, entrega absolutamente terminada en 12 meses con amoblamiento de cocina (alacena y bajo mesada), baños con todos sus artefactos, placares, terminaciones.
PAGO PARCIAL DEL 60% Y EL RESTANTE EN CUOTAS CONTRA AVANCE DE OBRA.

(as)


Datos de la propiedad

  • ID#
    309867-2396
  • Tipo de construcción
    Casa
  • Condición
    Venta
  • Superficie Total m2
    150
  • Dormitorios
    2
  • Cochera
    Garage/Cochera
  • Superficie Cubierta m2
    85
  • Baños
    2
  • Antigüedad
    A Estrenar
  • Barrio Privado
  • Tiene Expensas
    No
  • Estado de Conservación
    Excelente

Ubicación

BARRIO PRIVADO VISTA MICHELO

Avisos similares