Casa en Venta en Rosario, Santa Fe.

Rosario Santa Fe

Rosario,

RIVADAVIA 945

2
207m2
450m2

Descripción

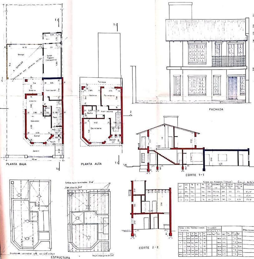
CASA 4 DORMITORIOS - Sobre calle Rivadavia entre Honduras y Antártida Argentina

Desarrollada sobre un terreno de 10 metros de frente por 45 metros de fondo, siendo la superficie total 450 m².

La edificación se encuentra con un grado de avance del 50 %, techada con madera, machimbre y chapa.

PLANTA BAJA: hall de ingreso, cocina comedor, 1 dormitorio y baño. Galería con vista al jardín, lavadero, depósito y garaje (terminado).

PLANTA ALTA: 3 dormitorios y 1 baño.

Superficie cubierta: 207 m².

Servicios disponibles: agua corriente, gas natural y cloacas. Calle asfaltada.

Todas las fotos publicadas son propiedad intelectual de Furigo Negocios Inmobiliarios. No es permitida su utilización comercial.

FURIGO Negocios Inmobiliarios para vidas en movimiento!

Pablo C. Furigo
Mat. 0334 COCIR


XINTEL (FUG-SPF-415)


Datos de la propiedad

  • ID#
    310516-313
  • Tipo de construcción
    Casa
  • Condición
    Venta
  • Superficie Total m2
    450
  • Cochera
    Garage/Cochera
  • Superficie Cubierta m2
    207
  • Baños
    2
  • Plantas

Ubicación

Rivadavia 945

Avisos similares