Edificio en Alquiler en Capital, Mendoza.

Capital Mendoza

1.ª Sección Parque Central

PERÚ Y AV. SARMIENTO - EDIFICIO AAA

1000m2
1500m2

¿Necesitás una garantía de alquiler?

Obtené tu garantía con Alucerto

Quiero cotizar garantía


Descripción

EDIFICIO AAA DE OFICINAS Y LOCAL COMERCIAL.
- DE DISEÑO CONTEMPORÁNEO, CALIDAD CONSTRUCTIVA, DETALLADAS TERMINACIONES, FLEXIBILIDAD EN EL USO DEL ESPACIO INTERIOR ( PLANTAS LIBRES ), EXTENSO PATIO OASIS EN PLANTA BAJA Y AMPLIAS TERRAZAS CON VISTAS EN PISOS SUPERIORES.
- UBICACIÓN PRIVILEGIADA, CON ACCESO A COMERCIOS, RESTAURANTES, HOTELES, TEATROS, MUSEOS, PLAZAS Y SERVICIOS.
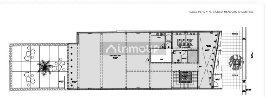
- PLANTA BAJA: HALL ACCESO JERARQUIZADO, 350 MTS PLANTA LIBRE, ZOCALO SANITARIO Y SERVICIOS. PATIO OASIS.-
- PRIMER PISO: 350 MTS PLANTA LIBRE, ZOCALO SANITARIO Y AMPLIA TERRAZA.
- SEGUNDO PISO: 300 MTS PLSNTA LIBRE, ZOCALO SANITARIO Y AMPLIA TERRAZA.
ASCENSOR ÚLTIMA GENERACIÓN.

CANON MENSUAL: USD 15.000 + IVA.-
EN IMÁGENES SE ADJUNTA PLANIMETRÍA.


Datos de la propiedad

  • ID#
    4335-3099
  • Tipo de construcción
    Edificio
  • Condición
    Alquiler
  • Superficie Total m2
    1500
  • Superficie Cubierta m2
    1000
  • Plantas
    3 Plantas
  • Estado de Conservación
    Excelente

Ubicación

PERÚ Y AV. SARMIENTO - EDIFICIO AAA

Avisos similares