Casa en Venta en Lujan de Cuyo, Mendoza.

Lujan de Cuyo Mendoza

Mayor Drummond

Bº LA QUEBRADA. CALLE ARAOZ - RUTA 0

2
3
143m2
500m2

Descripción

Corredor Responsable Real Estate New Generation SA CCPIM 0001- SA - 2011 -
Contacto Javier Floriani - MLS ID 421410023-639

El equipo de Remax Excelencia ofrece a la venta amplia y moderna casa en construcción con entrega en OCTUBRE 2026 en el barrio privado La Quebrada que se encuentra sobre la ruta 60 de Luján de Cuyo frente al barrio Milcayac 1

Zona de gran crecimiento urbanístico con muy rápida salida al acceso sur de la provincia. - Seguridad 24 hs y control de acceso. Cerco eléctrico en todo el perímetro y cámaras de vigilancia monitoreadas

Emplazada en un lote de 500 m2 a sobre el boulevard principal del barrio a solo 300 mts del portal de ingreso

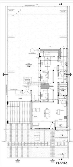
Se distrubuye en una planta con 143 m2 cubiertos y 37 m2 semicubiertos aprox

-Sistema de construcción tradicional 100.
- Cocina muy espaciosa integrada al living comedor
- Techos de doble altura brindando mayor luminosidad y amplitud
- Lavadero zonificado
_ Patio tender
- 3 habitaciones 1 con baño en suite y vestidor
- 2 baños completos
- Placares de pared a pared y de piso a techo en dos habitaciones
- Cochera doble pergolada
- Patio con churrasquera
- Servicios de luz agua y gas
- Seguridad 24hs
- Pre instalación de calefacción central por radiadores
- Pre instalación de aires acondicionados
- Pisos de porcelanato 58 x 58 cm

Fecha pactada de entrega OCTUBRE 2.026.

- Materiales aberturas y terminaciones de excelente calidad que garantizan duración y conservación.

Se entrega llave en mano.

Se adjunta memoria descriptiva en el boleto de compra venta.

FORMAS DE PAGO

- 60 en efectivo al momento del boleto de compra venta y saldo en cuotas mensuales sin interés o por avance de obra.
- Se aceptan permutas vahículos o lotes a precio de mercado
- Cancelación a la entrega de la unidad.

Tu consulta es bienvenida

Contactame para visitar la obra y unidades terminadas.

RAU S.R.L. no ejerce el corretaje inmobiliario. El presente sitio web es una plataforma en donde cada oficina inmobiliaria independiente que contrata los servicios RE/MAX puede publicar las propiedades a su cargo. Cada oficina es de propiedad y gestión independiente, por lo que RAU S.R.L. no interviene en los datos de la publicación, en la operación inmobiliaria, ni en la confección y/o firma del boleto de compraventa y/o escritura y/o contrato de alquiler. En cumplimiento de las leyes vigentes que regulan el corretaje inmobiliario, Ley Nacional 25.028, Ley 22.802 de Lealtad Comercial, Ley 24.240 de Defensa al Consumidor, las normas del Código Civil y Comercial de la Nación y Constitucionales, los agentes/gestores NO ejercen el corretaje inmobiliario. Todas las operaciones inmobiliarias son objeto de intermediación y conclusión por parte del corredor público inmobiliario colegiado a cargo de la publicación, cuyos datos se exhiben en la presente. La presente publicación describe las características esenciales del inmueble, debiéndose consultar al corredor público inmobiliario responsable de la operación por la eventual actualización de las medidas, descripciones arquitectónicas y funcionales, valores de expensas, servicios, impuestos, precios y demás información, cuyos valores son aproximados.


Datos de la propiedad

  • ID#
    1626-22861
  • Tipo de construcción
    Casa
  • Condición
    Venta
  • Superficie Total m2
    500
  • Dormitorios
    3
  • Cochera
    Garage/Cochera
  • Superficie Cubierta m2
    143
  • Baños
    2

Ubicación

Bº la Quebrada. Calle Araoz - Ruta 0

Avisos similares