Departamento en Venta en Guaymallen, Mendoza.

Guaymallen Mendoza

B° Alta Urquiza, San Francisco del Monte

DESTACADOS DEPTOS EN CASTRO Y URQUIZA

1
2
65m2
80m2

Descripción

Gold Group Argentina® Vende!!
Atractivo departamento ( sólo uno disponible, y es en PA ) en sostenido avance de obra ( en un exclusivo y moderno complejo de pocas unidades ) en una excelente ubicación del departamento de Guaymallén.
8 meses de entrega, apróx.
Barrio Alta Urquiza ( Manzana A, Lote 4 ), en las cercanías del loteo Bertolini y el Paseo Comercial Portezuelo.
Un ámbito semicerrado ( con entrada por calle asfaltada sin salida, lo que le da cierta privacidad ) cito en la intersección de las conocidas arterias Castro y Urquiza ( San Francisco del Monte, Guaymallén ).
Con rápidas salidas y sencillas.
Un vecindario en franco crecimiento y toda la potencialidad.
Shoppings, restaurantes, comercios, medios de transporte, fincas, countries y demás puntos de interés en los alrededores.
El compacto y exclusivo edificio ( de dos plantas ), donde se construyen las únicas ocho unidades, posee un concepto de diseño arquitectónico de vanguardia y consta de dinámicos espacios comunes.
De nomenclatura de Padrón Municipal 78859 y una superficie total de terreno de 502.95 m2.
El único departamento que comercializamos en VENTA se ubica en PA ( a través de fluidas escaleras ) y estará listo para habitarse en 8 meses, como se anticipó.
Cuenta con:
80 m2 totales apróx., 65 m2 cubiertos.
Equipada cocina, estar comedor, lavandería integrada, dos dormitorios, placares, bonito balcón, baño completo ( con su mobiliario ), cochera propia bajo techo y demás comodidades.
Se entrega con artefactos de cocina.
No incluye termotanque.
Una propiedad con proyección a ser luminosa, aireada, confortable y provista de materiales de noble calidad constructiva.
Todos los servicios.
No se abonan expensas.
Se aceptan mascotas.
Valor tasado: U$D 45.000.-
En resumen una gran oportunidad para vivir en pocos meses o bien como inversión de futura renta!!
A vuestra disposición.
Matrícula: SA_004
Estamos a su disposición para visitas y/o cualquier requerimiento sobre esta insoslayable ocasión!
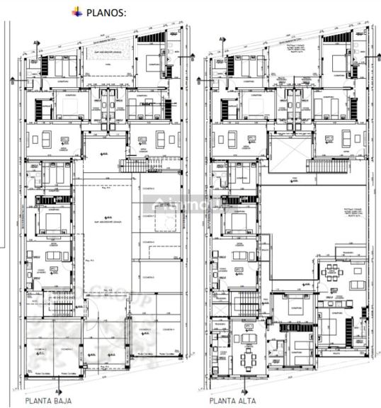
Adjuntamos a la publicación renders ilustrativos, imágenes de la obra en sostenido avance y planimetrías del lugar donde se erige este espléndido inmueble de sólo ocho departamentos.
La información detallada es exclusiva de Gold Group Argentina® y es susceptible a modificación sin previo aviso.
NOTA: quienes pretendan contratar los servicios estarán sujetos a las consideraciones detalladas a continuación:
Se le informa que tanto los precios, como las distancias, características, medidas y/o condiciones publicadas son aproximaciones, no precisas y sujetas a modificaciones, las cuales se efectuarán sin previo aviso.
Asimismo, todos los datos proporcionados en esta publicación pueden contener errores, los cuales no deben considerarse contractuales ni vinculantes.
Tenga en cuenta que algunas características y terminaciones pueden variar o no encontrarse incluidas en el precio indicado. Recomendamos siempre consultar con nuestros profesionales para confirmar la verosimilitud y actualización de la información proporcionada.


Datos de la propiedad

  • ID#
    17636-2996
  • Tipo de construcción
    Departamento
  • Condición
    Venta
  • Superficie Total m2
    80
  • Dormitorios
    2
  • Cochera
    Garage/Cochera
  • Superficie Cubierta m2
    65
  • Baños
    1
  • Zona Escolar
  • Plantas
    1 Planta
  • Antigüedad
    A Estrenar
  • Tiene Expensas
    No
  • ¿Aceptan Mascotas?
  • Estado de Conservación
    Excelente
  • ¿Recibe Permuta?

Ubicación

Destacados deptos en Castro y Urquiza

Avisos similares