Departamento en Venta en Rosario, Santa Fe.

Rosario Santa Fe

Distrito Centro,

BALCARCE800

3
3
94m2
111m2

Descripción

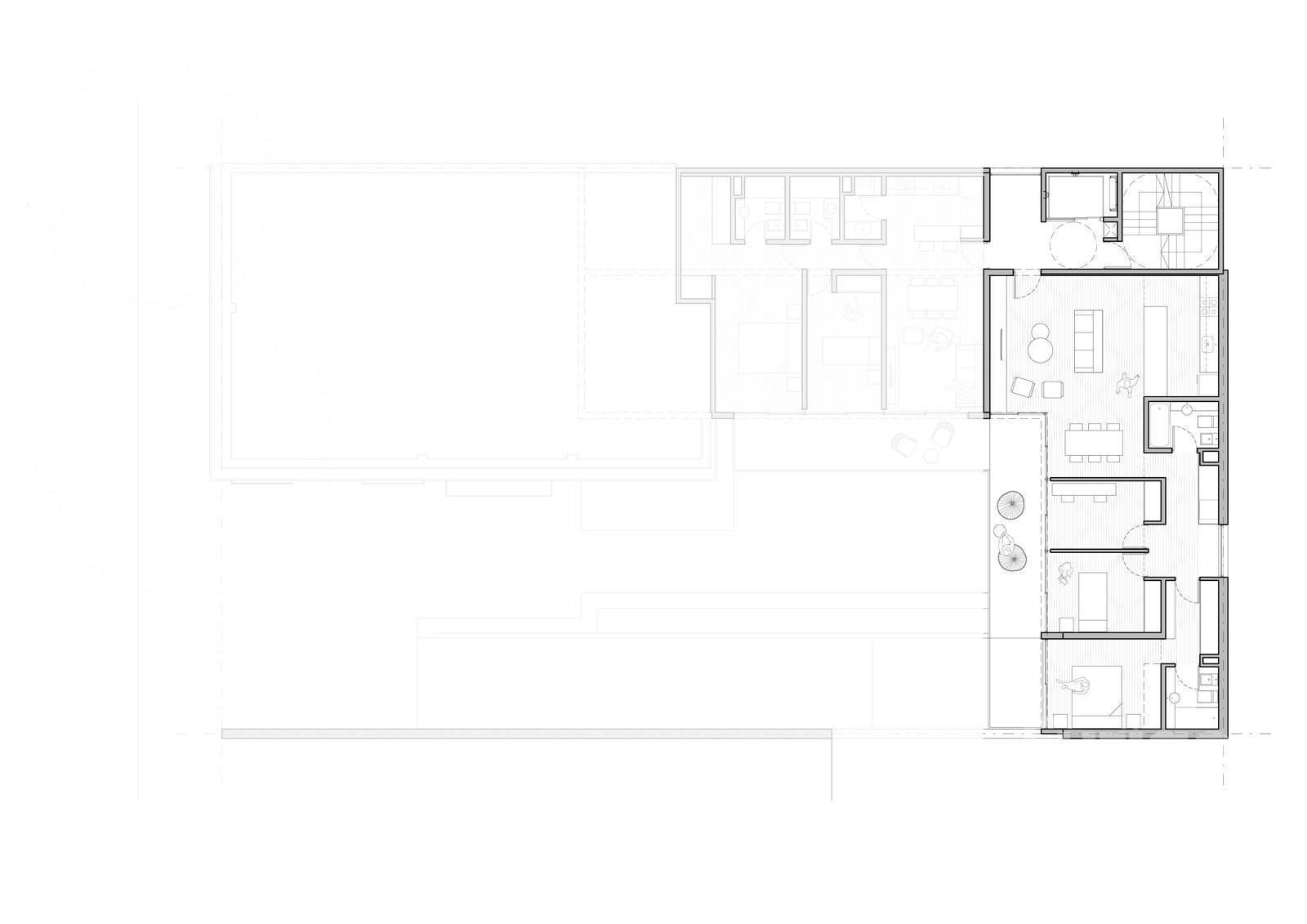
-DEPARTAMENTO- 
Semipiso de 106m2, con ingreso por living comedor, con cocina semi integrada, y amueblamiento completo. El living comedor es super amplio, luminoso y tiene salida al balcón, el cual es aterrazado. Baño social completo. El departamento cuenta con 3 dormitorios completos de las cuales la principal cuenta con vestidor y baño en suite. 

Superficie total: 111m2 

Superficie cubierta: 17m2 

Superficie semicubierta: 94m2 

EDIFICIO- Edificio de planta baja y 12 pisos con cocheras. Tendrá una plaza en el ingreso y se realizara la recuperación de la casa existente conservando sus virtudes arquitectónicas. Edifico de 12 pisos, con 14 unidades de 2 dormitorios, 7 unidades de 3 dormitorios y 1 unidad de 4 dormitorios. Terraza con amenities 

UBICACION- A una cuadra de Bv. Oroño, en el comienzo del inicio del Paseo del Siglo, a metros de la Plaza San Martin, sobre calle Córdoba, uno de los principales corredores de la ciudad, cerca a colegios, universidades y al centro comercial y financiero de Rosario, con fácil accesibilidad a los medios de transporte.

Todas las fotos publicadas son propiedad intelectual de Furigo Negocios Inmobiliarios. No es permitida su utilización comercial.

FURIGO Negocios Inmobiliarios para vidas en movimiento!

Pablo C. Furigo
Mat. 0334 COCIR





XINTEL (FUG-RSF-815)


Datos de la propiedad

  • ID#
    310516-1019
  • Tipo de construcción
    Departamento
  • Condición
    Venta
  • Superficie Total m2
    111
  • Dormitorios
    3
  • Cochera
    Sin Cochera
  • Superficie Cubierta m2
    94
  • Baños
    3
  • Plantas

Ubicación

Balcarce800

Avisos similares