Departamento en Venta en Rosario, Santa Fe.

Rosario Santa Fe

Distrito Centro,

BALCARCE800

3
3
94m2
106m2

Descripción

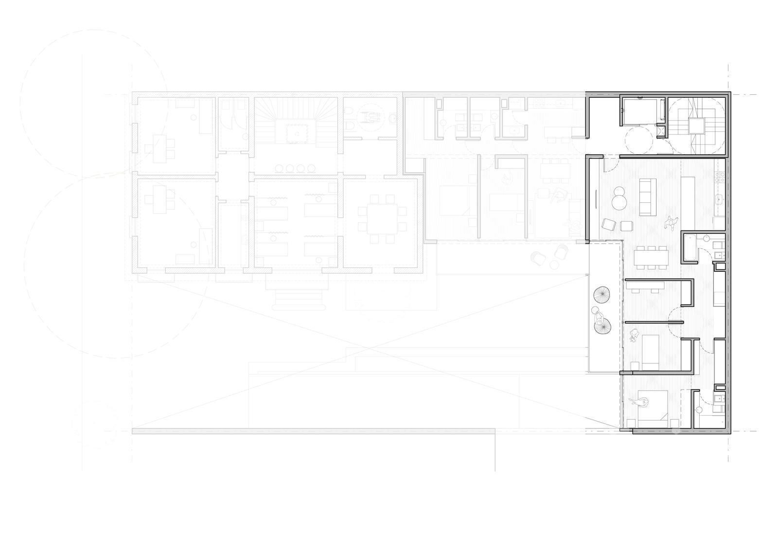
-DEPARTAMENTO- 

Semipiso de 106m2, con ingreso por living comedor, con cocina semi integrada, y amueblamiento completo. El living comedor es super amplio, luminoso y tiene salida al balcón, el cual es aterrazado. Baño social completo. El departamento cuenta con 3 dormitorios completos de las cuales la principal cuenta con vestidor y baño en suite.
Superficie total: 106m2
Superficie cubierta: 12m2
Superficie semicubierta: 94m2

--

-EDIFICIO- 

Edificio de planta baja y 12 pisos con cocheras. Tendrá una plaza en el ingreso y se realizara la recuperación de la casa existente conservando sus virtudes arquitectónicas. Edifico de 12 pisos, con 14 unidades de 2 dormitorios, 7 unidades de 3 dormitorios y 1 unidad de 4 dormitorios. Terraza con amenities 

 -UBICACION- 

A una cuadra de Bv. Oroño, en el comienzo del inicio del Paseo del Siglo, a metros de la Plaza San Martin, sobre calle Córdoba, uno de los principales corredores de la ciudad, cerca a colegios, universidades y al centro comercial y financiero de Rosario, con fácil accesibilidad a los medios de transporte. 

XINTEL (FUG-RSF-816)


Datos de la propiedad

  • ID#
    310516-1020
  • Tipo de construcción
    Departamento
  • Condición
    Venta
  • Superficie Total m2
    106
  • Dormitorios
    3
  • Cochera
    Sin Cochera
  • Superficie Cubierta m2
    94
  • Baños
    3
  • Plantas

Ubicación

Balcarce800

Avisos similares