Local Comercial en Venta en Rosario, Santa Fe.

Rosario Santa Fe

Distrito Centro,

CORRIENTES 353 |

1250m2
1250m2

Descripción

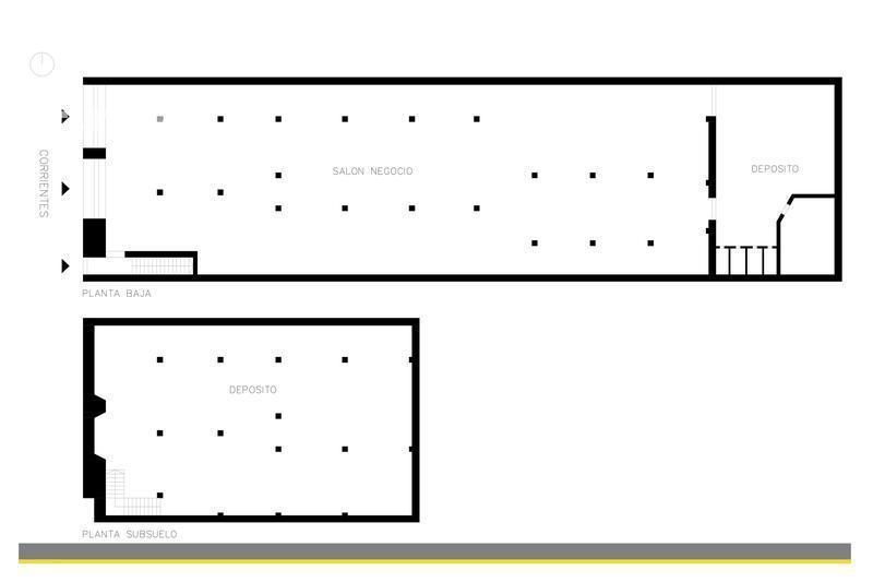
Amplia propiedad en Corrientes al 300. La misma se compone de un local comercial de gran superficie en planta baja con depósito en subsuelo. En primer piso se desarrolla una vivienda de 4 habitaciones a reciclar completamente.
Esta propiedad cuenta con protección patrimonial 2A, supone la preservación de fachada, envolventes y partes consideradas de valor patrimonial. Criterio de restauración científicos. Permite alterar orden distributivo en medida que revalorice el conjunto edilicio. No se puede alterar ni agregar volumetría. (Ordenanza 8.245)

Medidas:
Frente 12,54m. Lado Norte 55.82. Lado Sur 55.79m.

Consultanos!

Todas las fotos publicadas son propiedad intelectual de Furigo Negocios Inmobiliarios. No es permitida su utilización comercial.

FURIGO Negocios Inmobiliarios para vidas en movimiento!

Pablo C. Furigo
Mat. 0334 COCIR
XINTEL (FUG-FUG-136)


Datos de la propiedad

  • ID#
    310516-115
  • Tipo de construcción
    Local Comercial
  • Condición
    Venta
  • Superficie Total m2
    1250
  • Cochera
    Sin Cochera
  • Superficie Cubierta m2
    1250
  • Plantas

Ubicación

Corrientes 353 |

Avisos similares