Departamento en Venta en Rosario, Santa Fe.

Rosario Santa Fe

Nuestra Señora de Lourdes,

RODRIGUEZ1500

3
180m2
180m2

Descripción

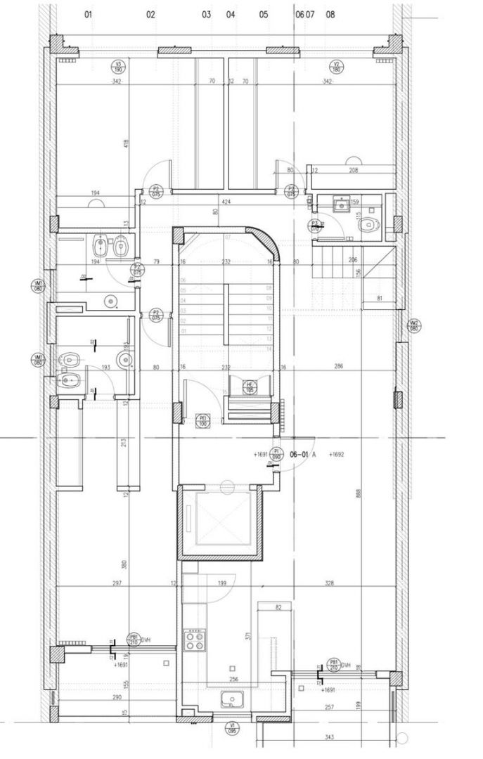
Piso exclusivo de 3 dormitorios c terraza exclusiva

-Ubicación-

En el barrio Lourdes, entre las calles Zeballos y Montevideo, a metros de Av. Pellegrini, Bv. Oroño, importantes Universidades de la ciudad, Parque Independencia.

-Edificio-

Compuesto por Planta baja con cocheras y 6 pisos con unidades semi piso desde el 1ero al 5to y unidad de piso exclusivo en el Sexto piso con terraza exclusiva.

Cuenta con control de accesos Demarchi tanto en puerta de ingreso, cocheras y ascensor.

Piso de porcelanato en todos los ambientes.

Pre instalación de aire acondicionado en dormitorios y living comedor.

Loza radiante en todos los ambientes.

Luminaria en cocina y baños.

Placares con dormitorios secundarios.

-Departamento-

Unidad de piso exclusivo de 3 dormitorios en el sexto piso.

Ingreso a living comedor con salida a balcón al frente. Cocina semi integrada con horno empotrado, anafe y muebles de cocina.

Cuenta con toilette en el sector social.

Dormitorios secundarios ubicados al contrafrente. Ambos con placard empotrado de piso a techo.

Baño completo con ducha, extractor y loza radiante.

Dormitorio principal con salida a balcón propio al frente. Baño completo en suite y sector de vestidor (sin muebles).

Sistema de alarma Demarchi.

Todo los ambientes tienen loza radiante y pre instalación de aire acondicionado.

La unidad cuenta con terraza exclusiva la cual se ingresa desde el living comedor. Vista totalmente despejada.

Superficie total: 130 m2 + 50 m2 de terraza exclusiva.

La unidad incluye 2 cocheras que NO están incluidas en el precio de la publicación.

Precio de las cocheras: U$S 15.000 cada una.

PRECIO DEL DEPARTAMENTO U$S 295.000




XINTEL (FUG-RSF-936)


Datos de la propiedad

  • ID#
    310516-46
  • Tipo de construcción
    Departamento
  • Condición
    Venta
  • Superficie Total m2
    180
  • Cochera
    Garage/Cochera
  • Superficie Cubierta m2
    180
  • Baños
    3
  • Plantas
    no

Ubicación

Rodriguez1500

Avisos similares