Departamento en Venta en Rosario, Santa Fe.

Rosario Santa Fe

Abasto,

VIAMONTE600

2
3
115m2
143m2

Descripción

-UBICACION-

El edificio esta ubicado en una zona residencial caracterizada por su tranquilidad. El proyecto se encuentra en el primer anillo perimetral de la ciudad de Rosario, cercano al corredor gastronómico de Av. Pellegrini y a metros del corredor urbano de Calle Buenos Aires, lo cual lo conecta de forma inmediata con la planta urbana de Rosario.

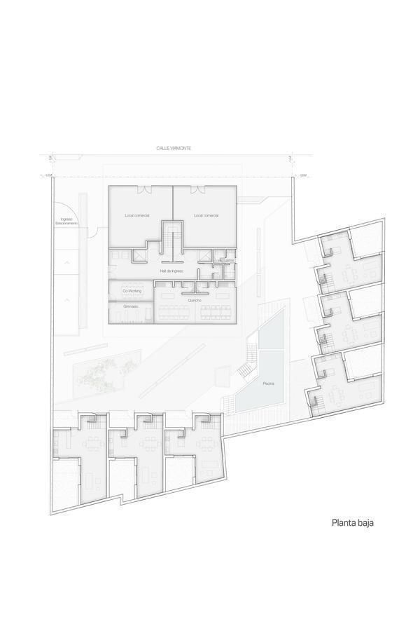
-EDIFICIO-

Ubicado en un lote de grandes dimensiones el proyecto esta conformado por una torre exenta de 6 pisos con unidades de 1, 2,3 y 4 dormitorios, los últimos pisos cuentan con terrazas exclusivas. También cuenta con un conjunto de casas con patios que se articulan dentro del complejo mediante una plaza seca perteneciente a todo el conjunto. El complejo cuenta con amenidades entre las cuales se encuentran: pileta, solárium, vestuarios, sala de reuniones o co-working, gimnasio y dos salones de usos múltiples con parrilla. Los departamentos fueron pensados para satisfacer la necesidad de usuarios que busquen diseño, espacios amplios y versatilidad. Ademase el complejo cuenta con cocheras ventiladas y bauleras, de acceso directo a las ares comunes como al edifico principal.

El diseño integral del edificio consolida un lenguaje arquitectónico contemporáneo que mezcla materialidades en búsqueda de la complejidad formal de las cuatro fachadas del edificio exento y dialoga con la estética de las casas. La inclusión de elementos metálicos en la fachada nos ayudo a alivianar el sistema estructural de los balcones, desdibujando una grilla y aumentando la permanencia de los ambientes hacia el norte. Al Este y al Oeste las fachadas se materializan con ladrillos y rejas galvanizadas, ganando mayor protección higrotérmica pero logrando un lenguaje de transición hacia la fachada sur, que repite la fachada norte con algunas características propias de la orientación.

-TERMINACIONES-

Acondicionamiento térmico través de calderas centrales en la torre y calderas murales en las casas.

Pisos con porcelanatos de primera calidad.

Carpintería metálica

Carpinteria de madera en puertas de ingreso.

Enlucido de yeso.

Artefactos de baños y cocina de primeras marcas (Jhonson, Ferrum).

Horno y anafe eléctrico.

Griferías de primera marca (FV)

Ascensor de 8 paradas con cabina metálica. Sensores de movimiento en todos los sectores comunes y célula fotoeléctrica.

Portón de ingreso de cochera automatizado.

-3 DORMITORIOS-
Living comedor con cocina integrada con barra desayunadora. 2 baños completos (uno en suite). 1 baño de servicio. Vestidor. Escritorio. Balcon terraza al frente. Baulera nº11. Opcional cochera.

-FORMA DE PAGO-

Contado

Financiación: 30% Anticipo + 70% en 40 cuotas en pesos ajustables al índice CAC.











Todas las fotos publicadas son propiedad intelectual de Furigo Negocios Inmobiliarios. No es permitida su utilización comercial.

FURIGO Negocios Inmobiliarios para vidas en movimiento!

Pablo C. Furigo
Mat. 0334 COCIR
XINTEL (FUG-FUG-895)


Datos de la propiedad

  • ID#
    310516-647
  • Tipo de construcción
    Departamento
  • Condición
    Venta
  • Superficie Total m2
    143
  • Dormitorios
    3
  • Cochera
    Sin Cochera
  • Superficie Cubierta m2
    115
  • Baños
    2
  • Plantas

Ubicación

Viamonte600

Avisos similares