Departamento en Venta en Rosario, Santa Fe.

Rosario Santa Fe

Distrito Centro,

ZEBALLOS2700

1
50m2
50m2

Descripción

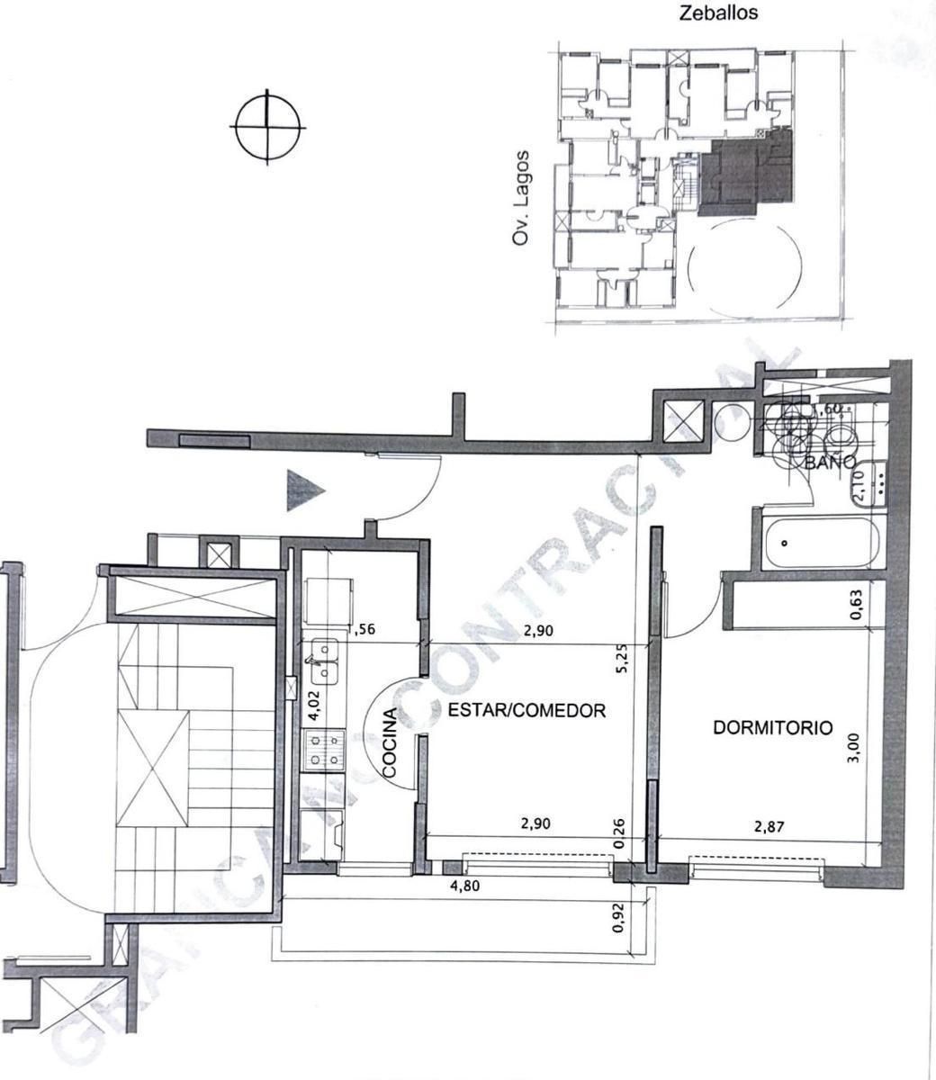
Venta departamento de 1 dormitorio a entregarse en un año.

-DEPARTAMENTO-

Amplio departamento de 1 dormitorio, ingreso por living comedor, con salida al balcón, cocina separada completa y dormitorio.
Edificio de Bauen Pilay, unidad adjudicada y saldada. El departamento se entrega en Abril del 2026.

-UBICACION-

Zeballos esquina Ov. Lagos, zona comercial, gastronómica y de fácil acceso al transporte publico y conexiones con el resto de la ciudad. 

Todas las fotos publicadas son propiedad intelectual de Furigo Negocios Inmobiliarios. No es permitida su utilización comercial.

FURIGO Negocios Inmobiliarios para vidas en movimiento!

Pablo C. Furigo
Mat. 0334 COCIR





XINTEL (FUG-RSF-67)


Datos de la propiedad

  • ID#
    310516-717
  • Tipo de construcción
    Departamento
  • Condición
    Venta
  • Superficie Total m2
    50
  • Cochera
    Sin Cochera
  • Superficie Cubierta m2
    50
  • Baños
    1
  • Plantas

Ubicación

Zeballos2700

Avisos similares