Lote en Venta en Rosario, Santa Fe.

Rosario Santa Fe

Distrito Centro,

CORRIENTES300

1250m2

Descripción

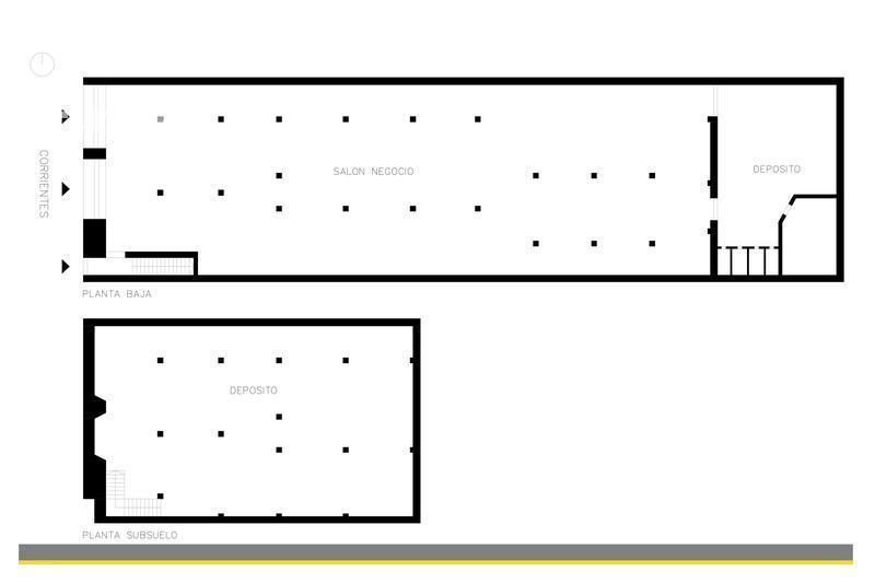
Amplia propiedad en Corrientes al 300. La misma se compone de un local comercial de gran superficie en planta baja con depósito en subsuelo. En primer piso se desarrolla una vivienda de 4 habitaciones a reciclar completamente.
Esta propiedad cuenta con protección patrimonial 2A, supone la preservación de fachada, envolventes y partes consideradas de valor patrimonial. Criterio de restauración científicos. Permite alterar orden distributivo en medida que revalorice el conjunto edilicio. No se puede alterar ni agregar volumetría. (Ordenanza 8.245)

Medidas:
Frente 12,54m. Lado Norte 55.82. Lado Sur 55.79m.

Consultanos! 


XINTEL (FUG-RSF-380)


Datos de la propiedad

  • ID#
    310516-817
  • Tipo de construcción
    Lote
  • Condición
    Venta
  • Superficie Total m2
    1250

Ubicación

Corrientes300

Avisos similares