Departamento en Venta en Rosario, Santa Fe.

Rosario Santa Fe

Distrito Centro,

MENDOZA1400

2
100m2
100m2

Descripción

DEPARTAMENTO DE 2 DORMITORIOS, EXCELENTE CALIDAD CONSTRUCTIVA
POSIBILIDAD DE FINANCIACIÓN

EDIFICIO
» Planta baja y 9 pisos.
» Unidades de cocheras y bauleras en subsuelo.
» Oficina en planta baja conentrepiso.
» Hall principal en doble altura jerarquizado.
» 2 quinchos, con capacidad de 16 personas cada uno, con posibilidad de integración. Ambos espacios totalmente equipados con heladeras verticales, freezers, parrillero, mesas y sillas.
» Terraza con solárium y duchas.

» Plaza verde que permite ser un placentero paseo rodeado de naturaleza para llegar a tu hogar, con espacios de sombra y con bancos para disfrutar del mismo.
» Seguridad: Controles de acceso y cámaras de video vigilancia.
» 2 ascensores con puertas automáticas de última generación.
» Servicios de confort como vidrios DVH

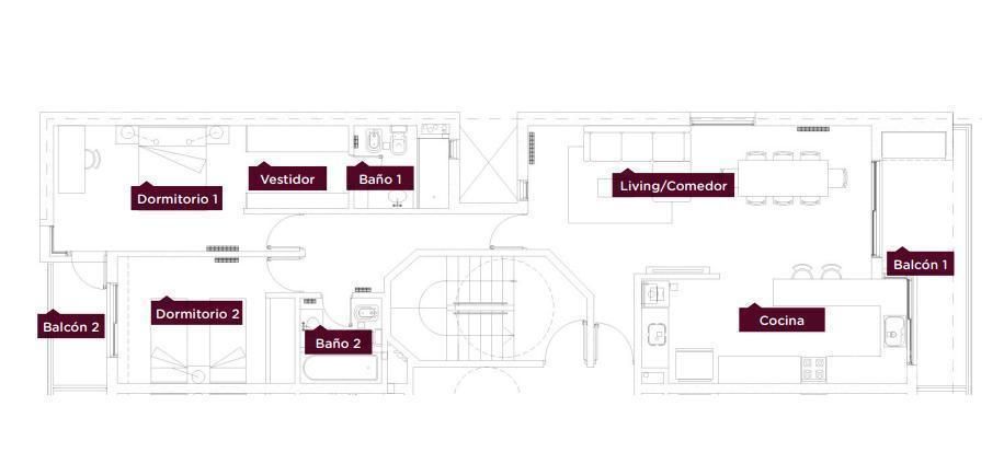
MEDIDAS:

» Superficie total: 100 m2
» LivingComedor: 7,20 x 3,40m.

» Cocina: 5,75 x 2,33m.

» Dormitorio 1: 4,35 x 2,90m.

» Vestidor: 2,30 x 1,84m.

» Baño 1 (en suite): 2,13 x 1,84m.

» Dormitorio 2: 4,09 x 2,83m.

» Baño 2: 1,82 x 1,97m.

» Balcón 1: 9,95m2.

» Balcón 2: 3,75m2.

CARACTERÍSTICAS

» Orientación nortesur, ventilación cruzada y excelente luminosidad.
» Pisos de ingeniería en madera en dormitorios y circulaciones.
» Pisos de porcelanato en estar comedor y cocina.

» Revestimiento cerámico en cocinas, baños y lavadero.
» Paredes y cielorrasos enlucidos en yeso y terminaciones de pintura látex acrílicas.
» Aberturas exteriores en aluminio color anonizado natural con vidrio DVH, de calidad superior, con colocación de premarcos en aluminio.
» Conductos para aire acondicionado ya instalados.
» Amplios balcones con iluminación incluida.
» Parrillero exclusivo.

DORMITORIOS

» Dormitorio principal en suite con vestidor y salida al balcón
» Dormitorio secundario con balcón corrido
»Puertas interiores placas lustradas y frente de placares en madera lustrada.
»Interiores de placard incluidos.

Todas las fotos publicadas son propiedad intelectual de Furigo Negocios Inmobiliarios. No es permitida su utilización comercial.

FURIGO Negocios Inmobiliarios para vidas en movimiento!

Pablo C. Furigo
Mat. 0334 COCIR


XINTEL (FUG-RSF-542)


Datos de la propiedad

  • ID#
    310516-868
  • Tipo de construcción
    Departamento
  • Condición
    Venta
  • Superficie Total m2
    100
  • Cochera
    Sin Cochera
  • Superficie Cubierta m2
    100
  • Baños
    2
  • Plantas

Ubicación

Mendoza1400

Avisos similares