Casa en Venta en Rosario, Santa Fe.

Rosario Santa Fe

Distrito Centro,

BALCARCE1400

3
127m2
174m2

Descripción

-DEPARTAMENTO-
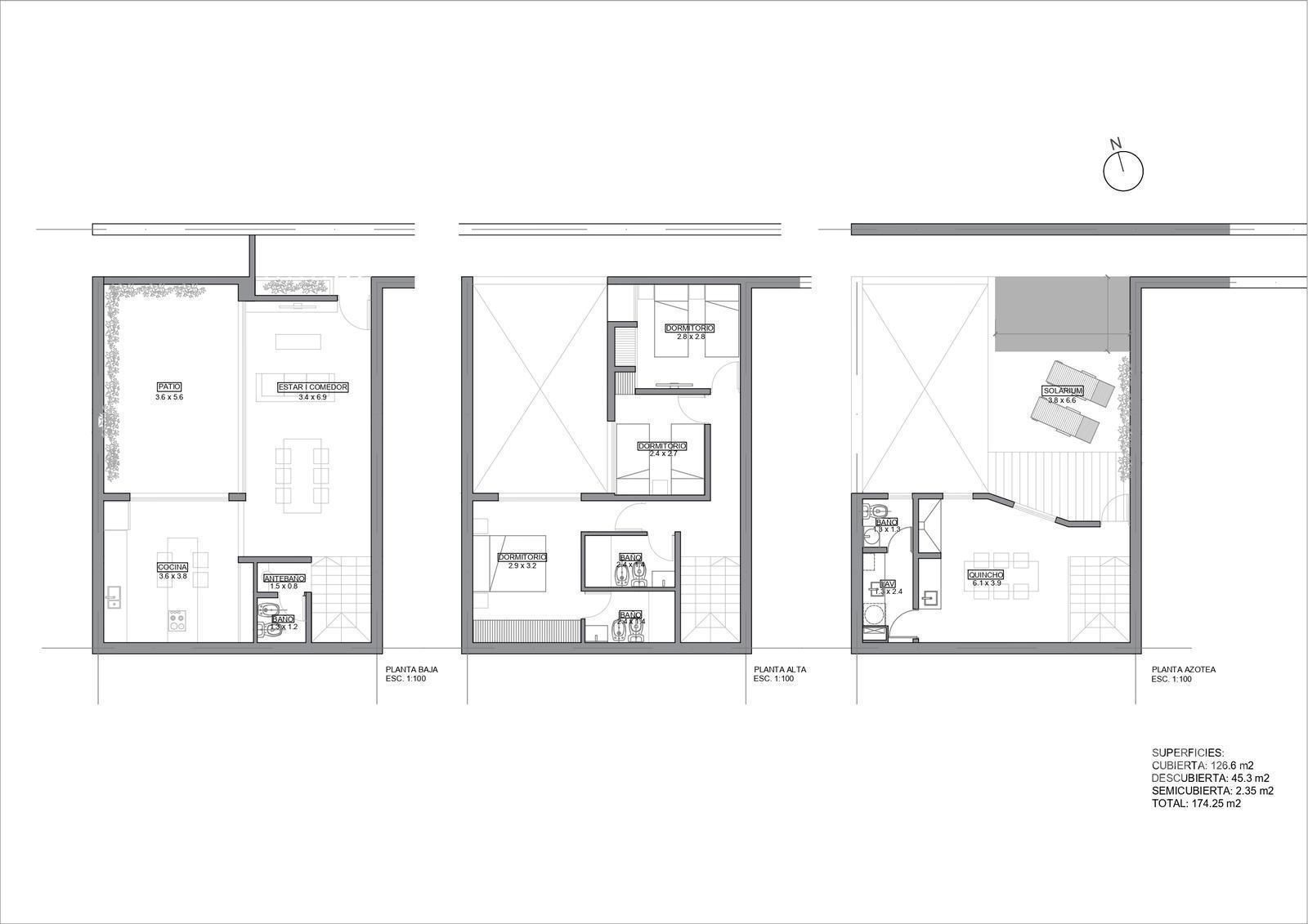
 Vivienda de pasillo compuesto por 2 unidades. La propiedad se desarrolla en planta baja con un patio, cocina separada con barra, living comedor y toilet. En planta alta cuenta con tres dormitorios con placard con frentes e interiores, dos baños, uno de ellos en suite.La terraza cuenta con un quincho equipado con mesada, parrillero, lavadero y toilet. Además cuenta con un espacio de solárium con piscina.

Planta Baja

Patio
Al ingresar, te recibirá un patio que agregaluminosidad y un espacio al aire libre.
Cocina
Cuenta con una cocina separada, equipada con una barra que permite una transición fluida hacia el área de comedor.
Living Comedor
Un amplio y confortable espacio para la vida familiar y el entretenimiento.
Toilette
Un baño de servicio conveniente para los invitados.

Planta Alta
En planta alta cuenta con tres dormitorios con placard con frentes e interiores, dos baños, uno de ellos en suite.

Terraza
La terraza cuenta con un quincho equipado con mesada, parrillero, lavadero y toilette. Además posee un espacio de solárium con piscina.

 SUPERFICIES

Cubierta: 126.6 m2

Descubierta: 44.3 m2

Semicubierta: 2 m2

Exclusivos: 174 m2

 -UBICACION-

Ubicado en Balcarce 1456, se encuentra en una zondinámica y accesible, rodeado de una amplia variedad de opciones gastronómicas, comerciales y de entretenimiento. Además, su proximidad a parques y espacios verdes permite disfrutar de momentos de tranquilidad.
Con excelentes conexiones de transporte y acceso a servicios, este departamento ofrece la combinación perfecta entre comodidad y estilo de vida. 

 Todas las fotos publicadas son propiedad intelectual de Furigo Negocios Inmobiliarios. No es permitida su utilización comercial. 

Pablo C. Furigo
Mat. 0334 COCIR





XINTEL (FUG-RSF-630)


Datos de la propiedad

  • ID#
    310516-893
  • Tipo de construcción
    Casa
  • Condición
    Venta
  • Superficie Total m2
    174
  • Cochera
    Garage/Cochera
  • Superficie Cubierta m2
    127
  • Baños
    3
  • Plantas

Ubicación

Balcarce1400

Avisos similares