Departamento en Venta en Rosario, Santa Fe.

Rosario Santa Fe

Rosario,

SANTA FE 2568 |

1
1
46m2
46m2

Descripción

SANTA FE 2568
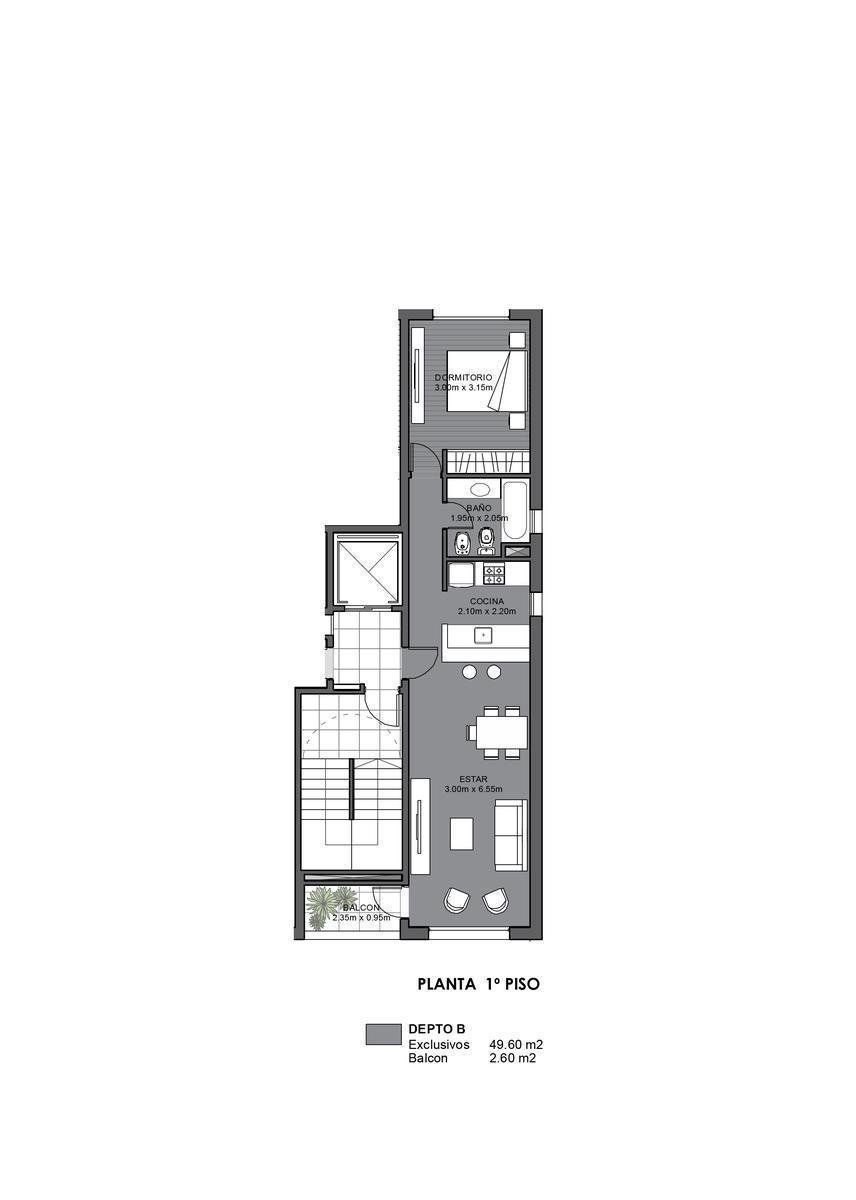
-1 DORMITORIO-
Unidad de 1 dormitorio muy amplia con ventilación cruzada y una excelente orientación. Cocina integrada con barra desayunadora. Dormitorio con placard hacia el contrafrente. Baño completo.
IMAGENES REFERENCIALES

-CARACTERISTICAS-
El edificio está compuesto por 10 semipisos de 1 y 2 dormitorios. Todos los departamentos son unidades
con ventilación cruzada y amplios balcones al frente, creando así un ambiente contiguo.
Cocheras opcionales en planta baja con portón automatizado.

-TERMINACIONES-
Cielorrasos y paredes en yeso terminados con pintura al látex.
Aberturas de aluminio blanco línea Módena con protección de cortina de enrollar motorizada en el
estar, y manual en dormitorios, ambas provistas de mosquiteros.
Puertas placas reforzadas enchapadas en madera y lustradas, con herrajes de primera calidad.
Frente de placares de piso a techo con guías de aluminio.
Pisos porcellanatos en estar, cocina, baño y balcón y pisos flotante en dormitorios.
Zócalos de madera lustrados en todos los ambientes.
Muebles de cocina completos: bajo mesada, alacenas, porta microondas, bodeguero, en melamina
blanca con filos de aluminio, mesada en granito gris mara o similar, pileta de acero inoxidable
Johnson y gritería monocomando FV. Espacio y conexiones para lavarropa.
En todos los deptos., quedaran instalados, la cocina, calefón y estufas en dormitorios, marca
LONGVIE, quedando un pico adicional en estar.
Instalación de cañerías para futura conexión de equipos split en estar y dormitorios.
Baño: mesada en mármol beige Sahara o blanco turco con bacha bajo mesada en losa blanca Ferrum,
sanitarios blancos de primera calidad, grifería de 1ra calidad y bañera.
Instalación de cañerías para telefonía y TV cable en todos los ambientes.
Hall de ingreso con detalles en madera y pisos de porcellanato.

-UBICACIÓN-

Se encuentra situado en una importante zona de la ciudad, en la calle Santa Fe entre Rodríguez y
Pueyrredón; a pocas cuadras de Bv.Oroño y de la costa ribereña. Con afluencia de gran cantidad de
líneas de transporte público hacia los distintos puntos de la ciudad. Próximo a importantes centros
educativos, Facultad Ciencias Económicas y Estadísticas, Facultad de Medicina, Ciencias Bioquímicas,
Odontología, farmacia de la U.N.R. y Derecho; como así también centros urbanos como el Paseo del
siglo, centros de Salud, Museos y centros de actividades culturales y deportivas, y a minutos del
microcentro.

Todas las fotos publicadas son propiedad intelectual de Furigo Negocios Inmobiliarios. No es permitida su utilización comercial.

FURIGO Negocios Inmobiliarios para vidas en movimiento!

Pablo C. Furigo
Mat. 0334 COCIR
XINTEL (FUG-RSF-642)


Datos de la propiedad

  • ID#
    310516-896
  • Tipo de construcción
    Departamento
  • Condición
    Venta
  • Superficie Total m2
    46
  • Dormitorios
    1
  • Cochera
    Garage/Cochera
  • Superficie Cubierta m2
    46
  • Baños
    1
  • Plantas

Ubicación

Santa Fe 2568 |

Avisos similares