Departamento en Venta en Rosario, Santa Fe.

Rosario Santa Fe

Distrito Centro,

ZEBALLOS2200

1
34m2
34m2

Descripción

-DEPARTAMENTOS-
Monoambiente al contrafrente. Compuesto al ingreso por estar comedor con cocina integrada equipada completa con bajo mesada alacena y barra. Placard. Baño completo con bañera. Orientación Sur. 34.75m2 totales.

-UBICACIÓN-

Se encuentra situado en una zona muy importante de la ciudad, sobre calle Zeballos entre Bv.Oroño y Alvear, a dos cuadras de Av. Pellegrini, y a media cuadra de Bv.Oroño, arterias principales de la ciudad. La zona goza de una gran variedad de vegetación y espacios de usos recreativos. Próximo a servicios urbanos fundamentales, como tribunales de Rosario, importantes centros de salud, Museo Castagnino, Parque Independencia, Paseo del Siglo; como así también a importantes centros educativos, U.N.R. Facultad Ciencias Económicas y Estadísticas, Facultad de Derecho, Universidad Abierta Interamericana (UAI), Universidad Católica Argentina (UCA), y otros centros de actividades culturales y deportivas. Con afluencia de gran cantidad de líneas de transporte público hacia los distintos puntos de la ciudad.

-EDIFICIO-

El edificio está compuesto por 12 departamentos de 1 dormitorio y 12 monoambientes. Los balcones, en los departamentos al frente, tienen barandas de aluminio anodizado natural, vidriadas (laminado incoloro 3+3)

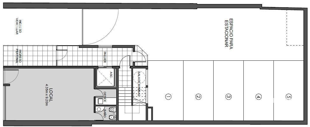
El local en planta baja tiene ingreso independiente. Sin acceso al interior del edificio.

Cocheras opcionales en planta baja, con portón automatizado y techadas con losas de hormigón.

El pedido de los servicios, tanto en el local como en los departamentos, será a cargo de los propietarios.

-TERMINACIONES-

Paredes medianeras, muros de frente y contrafrente: doble pared con cámara de aire, aislación hidráulica y aislación térmica en poliestireno de alta densidad.

Cielorrasos y paredes en yeso terminados con pintura al látex blanca.

Aberturas de aluminio blanco línea Módena con cortina de enrollar, tanto en los dormitorios como en el estar y mosquiteros en todas las aberturas.

Puertas placas reforzadas enchapadas en madera y lustradas, con herrajes de primera calidad.

Frente de placares de piso a techo con guías de aluminio. No incluye interiores de placares.

Pisos porcellanatos en estar, cocina, baño y balcón, y pisos flotante en dormitorios.

Zócalos de madera lustrados en todos los ambientes.

Muebles de cocina completos: bajo mesada, alacenas, porta microondas, bodeguero, en melamina blanca, mesada en granito gris mara o similar, pileta de acero inoxidable Johnson y grifería monocomando FV. Espacio y conexiones para lavarropa.

En todos los departamentos de un dormitorio, quedarán instalados, la cocina, el calefón y estufa de tiro balanceado Longvie en dormitorio, quedando un pico adicional para futura estufa en estar.

En monoambientes, quedarán instalados, anafe a gas y calefón tiro balanceado Longvie.

Instalación de cañerías para futura conexión de equipos de aire acondicionado en estar y dormitorio.

Baño: mesada en mármol beige Sahara o blanco turco, con bacha bajo mesada en losa blanca, sanitarios blancos Ferrum, grifería FV y bañera receptáculo.

Instalación de cañerías para telefonía y TV cable en todos los ambientes.

Hall de ingreso con frente vidriado de seguridad 3+3, detalles en madera y pisos de porcellanato.

Todas las fotos publicadas son propiedad intelectual de Furigo Negocios Inmobiliarios. No es permitida su utilización comercial.

FURIGO Negocios Inmobiliarios para vidas en movimiento!

Pablo C. Furigo
Mat. 0334 COCIR
XINTEL (FUG-RSF-734)


Datos de la propiedad

  • ID#
    310516-952
  • Tipo de construcción
    Departamento
  • Condición
    Venta
  • Superficie Total m2
    34
  • Cochera
    Sin Cochera
  • Superficie Cubierta m2
    34
  • Baños
    1
  • Plantas

Ubicación

Zeballos2200

Avisos similares