Departamento en Venta en Rosario, Santa Fe.

Rosario Santa Fe

Distrito Centro,

AV. PELLEGRINI2600

1
89m2
89m2

Descripción

Hermoso dúplex con vistas panorámicas al parque Independencia y la ciudad!

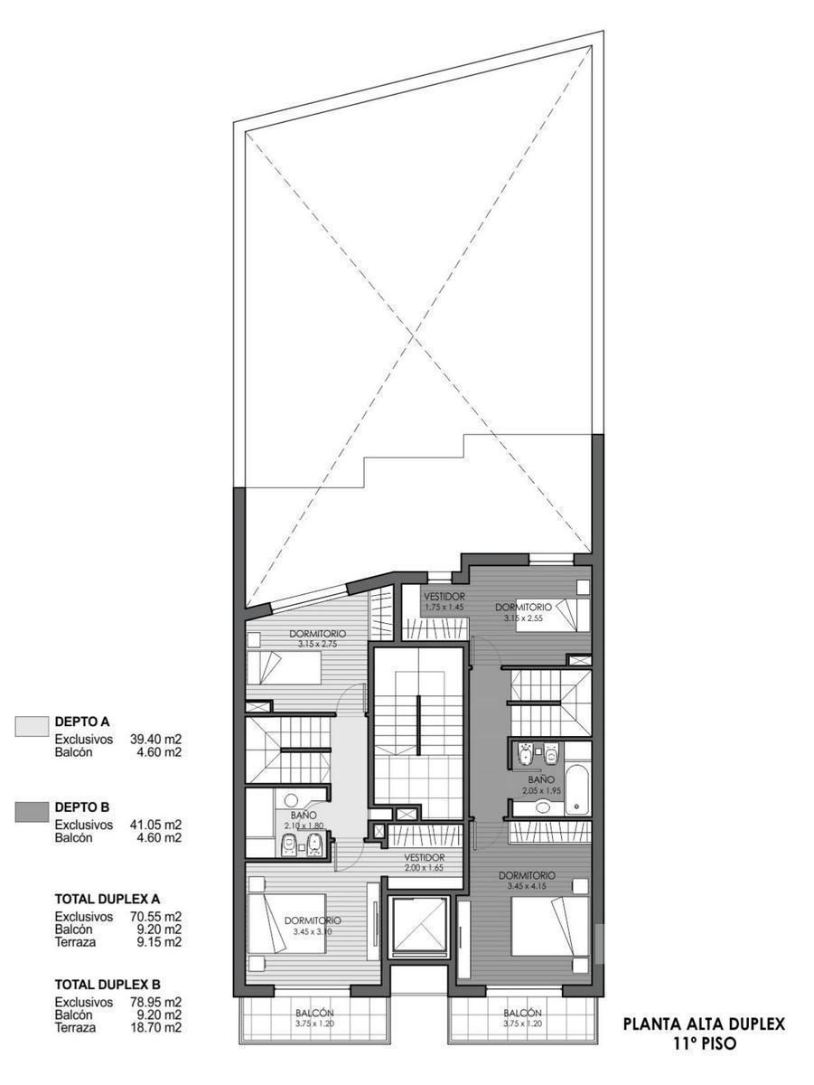
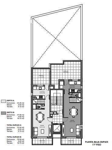
-2 DORMITORIOS-

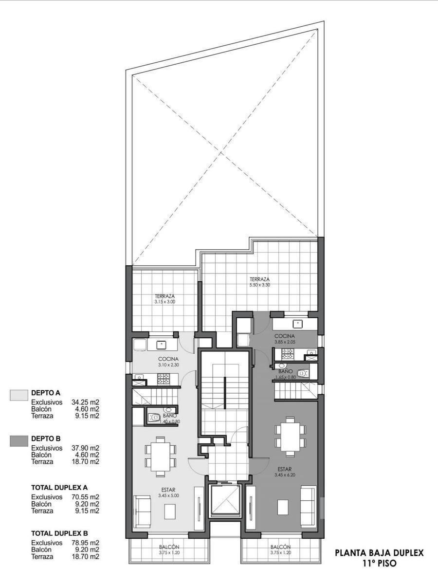
PB: Living comedor separado de la cocina por barra desayunadora. Baño de servicio. Balcon al frente. Ventilacion cruzada.

PA: Dormitorios, uno con vestidor. Baño completo. Terraza exclusiva.

SUPERFICIE DE USO EXCLUSIVO: 89m2 (71 m2 cubiertos + 9m2 balcón + 9m2 terraza)
-EDIFICIO-
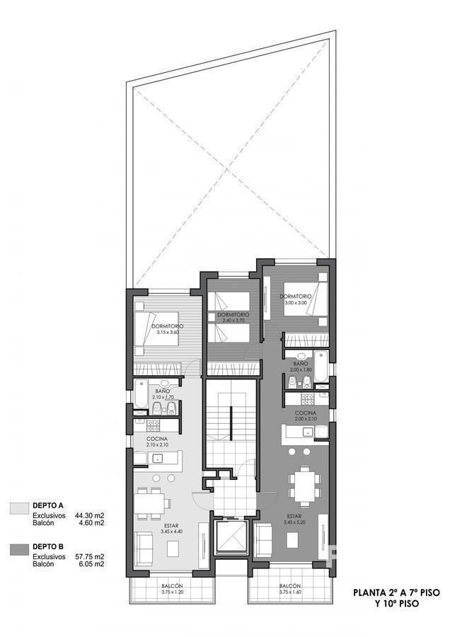
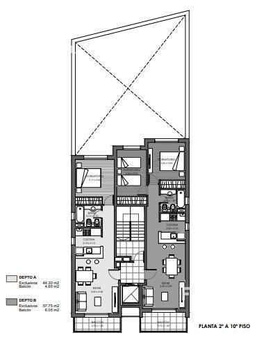
Es un edificio de 12 pisos, compuesto por 10 departamentos de un dormitorio y 10 de dos dormitorios: de los cuales ambos primeros pisos cuentan con un patio cada uno, quedando todos los ambientes con grandes dimensiones; y dos dúplex en el piso 11, ambos de dos dormitorios con terraza; todos con ventilación cruzada y amplios balcones con barandas vidriadas con vista al parque, creando así un ambiente contiguo.
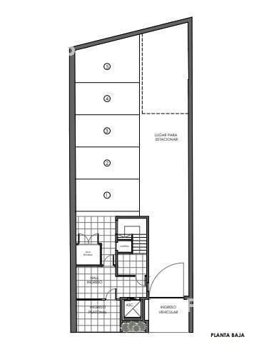
Cocheras opcionales en planta baja con portón automatizado.

-TERMINACIONES-
Cielorrasos y paredes en yeso terminados con pintura al latex.

Aberturas de aluminio blanco línea Modena con protección de cortina de enrollar tanto en

dormitorios y como en estares.

Puertas placas en madera lustradas con herrajes de primera calidad.

Frente de placares de piso a techo con guías de aluminio.

Pisos porcellanatos en estar, cocina, baño y balcón y pisos flotante en dormitorios.

Zócalos de madera lustrados en todos los ambientes.

Muebles de cocina completos: bajo mesada, alacenas, porta microondas, bodeguero, en melanina

blanca con filos de aluminio, mesada en granito gris mara, pileta de acero inoxidable Johnson y

gritería monocomando FV.

En deptos de un dormitorio: cocina y calefón y calefactor en dormitorios de primera calidad

instalados.

Instalación de cañerías para futura conexión de equipos split en estares y dormitorios.

Baño: mesada en mármol beige Sahara o similar con bacha bajo mesada de losa blanca, sanitarios

blancos FERRUM línea Bari o similar, grifería monocomando.

Instalación de cañerías para telefonía y TV cable en todos los ambientes.

Hall de ingreso con detalles en madera y pisos de porcellanato.

-UBICACIÓN-
Se encuentra situado en una zona muy importante de la ciudad, sobre Av. Pellegrini, una de las principales arterias, entre calles Rodriguez y Callao. A tan solo unas cuadras de Bv. Oroño y ubicado frente al parque Independencia, la zona goza con una gran variedad de vegetación y espacios de usos recreativos y deportivos. Próximo a servicios urbanos fundamentales como Tribunales de Rosario, Universidad Abierta Interamericana (UAI), Universidad Católica Argentina (UCA), importantes centros de Salud, Museo Castagnino, centros de actividades culturales y entidades deportivas, y a minutos del microcentro. Libre de estacionamiento y con afluencia de gran cantidad de líneas de transporte público hacia los distintos puntos de la ciudad.

-FORMA DE PAGO-
Contado
Financiación





Todas las fotos publicadas son propiedad intelectual de Furigo Negocios Inmobiliarios. No es permitida su utilización comercial.

FURIGO Negocios Inmobiliarios para vidas en movimiento!

Pablo C. Furigo
Mat. 0334 COCIR
XINTEL (FUG-RSF-761)


Datos de la propiedad

  • ID#
    310516-976
  • Tipo de construcción
    Departamento
  • Condición
    Venta
  • Superficie Total m2
    89
  • Cochera
    Sin Cochera
  • Superficie Cubierta m2
    89
  • Baños
    1
  • Plantas

Ubicación

Av. Pellegrini2600

Avisos similares