Departamento en Venta en Rosario, Santa Fe.

Rosario Santa Fe

Distrito Centro,

MENDOZA2800

1
2
75m2
75m2

Descripción

-UBICACIÓN-

Se encuentra situado en una importante zona de la ciudad, en la calle Mendoza entre Riccheri y Ovidio Lagos; a pocas cuadras de Bv.Oroño, Av Pellegrini, Av Francia y del Parque Independencia. Con afluencia de gran cantidad de líneas de transporte público hacia los distintos puntos de la ciudad.

Próximo a importantes centros educativos, Facultad Ciencias Económicas y Estadísticas, Universidad Abierta Interamericana (UAI), Universidad Católica Argentina (UCA), Tribunales, facultad de Medicina, Centros de Salud, Museos y centros de actividades culturales y deportivas, y a minutos del microcentro.

-EDIFICIO-

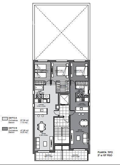
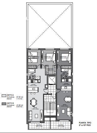
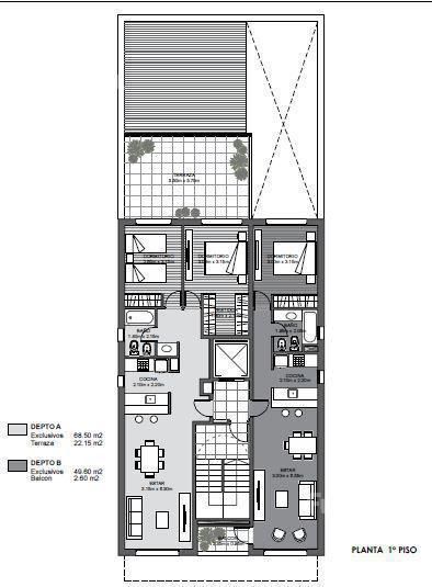
El edificio está compuesto por 10 semipisos de 1 y 2 dormitorios. Todos los departamentos son unidades con ventilación cruzada y amplios balcones al frente, creando así un ambiente contiguo.

Cocheras opcionales en planta baja con portón automatizado.

-TERMINACIONES-

Paredes medianeras y muros de frente y contrafrente: doble pared con cámara de aire, aislación hidráulica y aislación térmica en poliestireno de alta densidad.

Cielorrasos y paredes en yeso terminados con pintura al látex.

Balcones con barandas de aluminio y vidrio de seguridad.

Aberturas de aluminio blanco línea Módena con protección de cortina de enrollar motorizada en el estar, y manual en dormitorios, ambas provistas de mosquiteros.

Puertas placas reforzadas enchapadas en madera y lustradas, con herrajes de primera calidad.

Frente de placares de piso a techo con guías de aluminio.

Pisos porcellanatos en estar, cocina, baño y balcón y pisos flotante en dormitorios.

Zócalos de madera lustrados en todos los ambientes.

Muebles de cocina completos: bajo mesada, alacenas, porta microondas, bodeguero, en melamina blanca, mesada en granito gris mara o similar, pileta de acero inoxidable Johnson y gritería

monocomando FV o similar. Espacio y conexiones para lavarropa.

En todos los departamentos quedaran instalados, la cocina, calefón y estufa en dormitorio, marca LONGVIE, quedando un pico adicional en estar.

Instalación de cañerías para futura conexión de equipos split en estar y dormitorios.

Baño: mesada en mármol beige Sahara o blanco turco con bacha bajo mesada en losa blanca Ferrum,

sanitarios blancos de primera calidad, grifería de primera calidad y bañera.

Instalación de cañerías para telefonía y TV cable en todos los ambientes.

Hall de ingreso con detalles en madera y pisos de porcellanato.

-2DORMITORIOS-

Living comedor con cocina separada por barra desayunadora. 2 dormitorios con placard, baño completo. Balcon. Ventilacion cruzada. Cocheras opcionales en planta baja con portón automatizado. 75.20m2 totales, 7.70m2 de balcon.

Todas las fotos publicadas son propiedad intelectual de Furigo Negocios Inmobiliarios. No es permitida su utilización comercial.

FURIGO Negocios Inmobiliarios para vidas en movimiento!

Pablo C. Furigo
Mat. 0334 COCIR
XINTEL (FUG-RSF-766)


Datos de la propiedad

  • ID#
    310516-981
  • Tipo de construcción
    Departamento
  • Condición
    Venta
  • Superficie Total m2
    75
  • Dormitorios
    2
  • Cochera
    Sin Cochera
  • Superficie Cubierta m2
    75
  • Baños
    1
  • Plantas

Ubicación

Mendoza2800

Avisos similares