Departamento en Venta en Godoy Cruz, Mendoza.

Godoy Cruz Mendoza

J.A. ROCA 2020, GODOY CRUZ PISO 2 DEPTO 8

1
2
60m2
65m2

Descripción

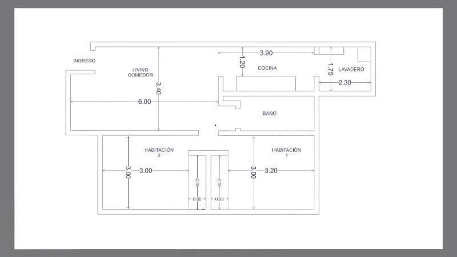
VENTA de DEPARTAMENTO de 3 AMBIENTES (2 habitaciones) ubicado sobre calle J.A. ROCA 2020, en el Barrio Las Tortugas, GODOY CRUZ.

Está ubicado entre las calles Pilcomayo y Barraquero.

El mismo cuenta con una superficie de 60m² cubiertos + balcón lavadero.

Se encuentra en 2° Piso.

La unidad está compuesta por:

- Living Comedor con Cocina semi integrada, de muy buenas dimensiones.

- Baño Completo, con ventilación natural.

- 2 habitaciones con placard integrado.

- Balcón al contrafrente con lavadero independiente y cubierto a continuación de la cocina.

- Conexión para lavarropas y bacha con agua fría y caliente.

- El agua caliente es a través de calefón.

El complejo cuenta con mantenimiento y expensas, de un valor de $20.000 por mes aprox.

LISTO PARA ESCRITURAR - APTO CRÉDITO HIPOTECARIO

VALOR VENTA USD. 45.000
Expensas $20.000

El departamento se encuentra alquilado hasta MARZO 2027
Canon actual $ 460.000 y actualizaciones trimestrales x IPC

Realizamos visitas todos los días.

#QueremosAyudarte


Datos de la propiedad

  • ID#
    36931-279
  • Tipo de construcción
    Departamento
  • Condición
    Venta
  • Superficie Total m2
    65
  • Dormitorios
    2
  • Cochera
    Sin Cochera
  • Superficie Cubierta m2
    60
  • Baños
    1
  • Piscina
    No
  • Calefacción Central
    No
  • Zona Escolar
    No
  • Teléfono
  • Antigüedad
    18 Años
  • Internet
  • Cable TV
    No
  • Aire Acondicionado
    No
  • Amoblado/a
    No
  • Tiene Expensas
  • Valor de Expensas
    20000
  • Financiación
    No
  • Apto Crédito Hipotecario
  • ¿Aceptan Mascotas?
  • Cantidad de Ambientes
    3
  • Estado de Conservación
    Excelente
  • ¿Recibe Permuta?

Ubicación

j.a. roca 2020, godoy cruz Piso 2 Depto 8

Avisos similares