Duplex en Venta en Guaymallen, Mendoza.

Guaymallen Mendoza

BARRIO LAS TACAS, Guaymallén (Villa Nueva)

BARRIO LAS TACAS ELPIDIO GONZALES

2
2
95m2
100m2

Descripción

Territorio Mendoza Vende

Dúplex ubicado en B° Las Tacas, Elpidio González y Las Cañas, Guaymallén.
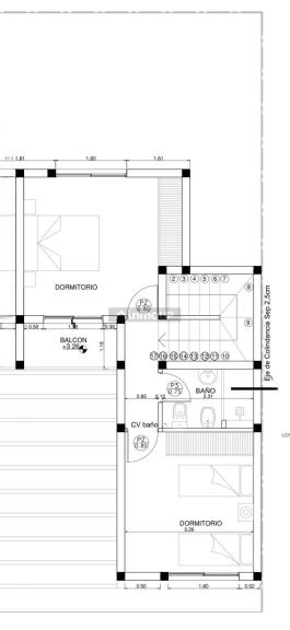
PLANTA BAJA: Living comedor - Comedor - Cocina lavandería - Toilette - Patio - Cochera.
PLANTA ALTA: 2 Habitaciones con placares- 1 Baño completo - Balcón.
EN OBRA, actualmente planta alta techada.
Entrega absolutamente terminado 7 meses con amoblamiento de cocina, placares, baño completo.

(as)


Datos de la propiedad

  • ID#
    309867-2401
  • Tipo de construcción
    Duplex
  • Condición
    Venta
  • Superficie Total m2
    100
  • Dormitorios
    2
  • Cochera
    Garage/Cochera
  • Superficie Cubierta m2
    95
  • Baños
    2
  • Antigüedad
    A Estrenar
  • Estado de Conservación
    Excelente

Ubicación

BARRIO LAS TACAS ELPIDIO GONZALES

Avisos similares